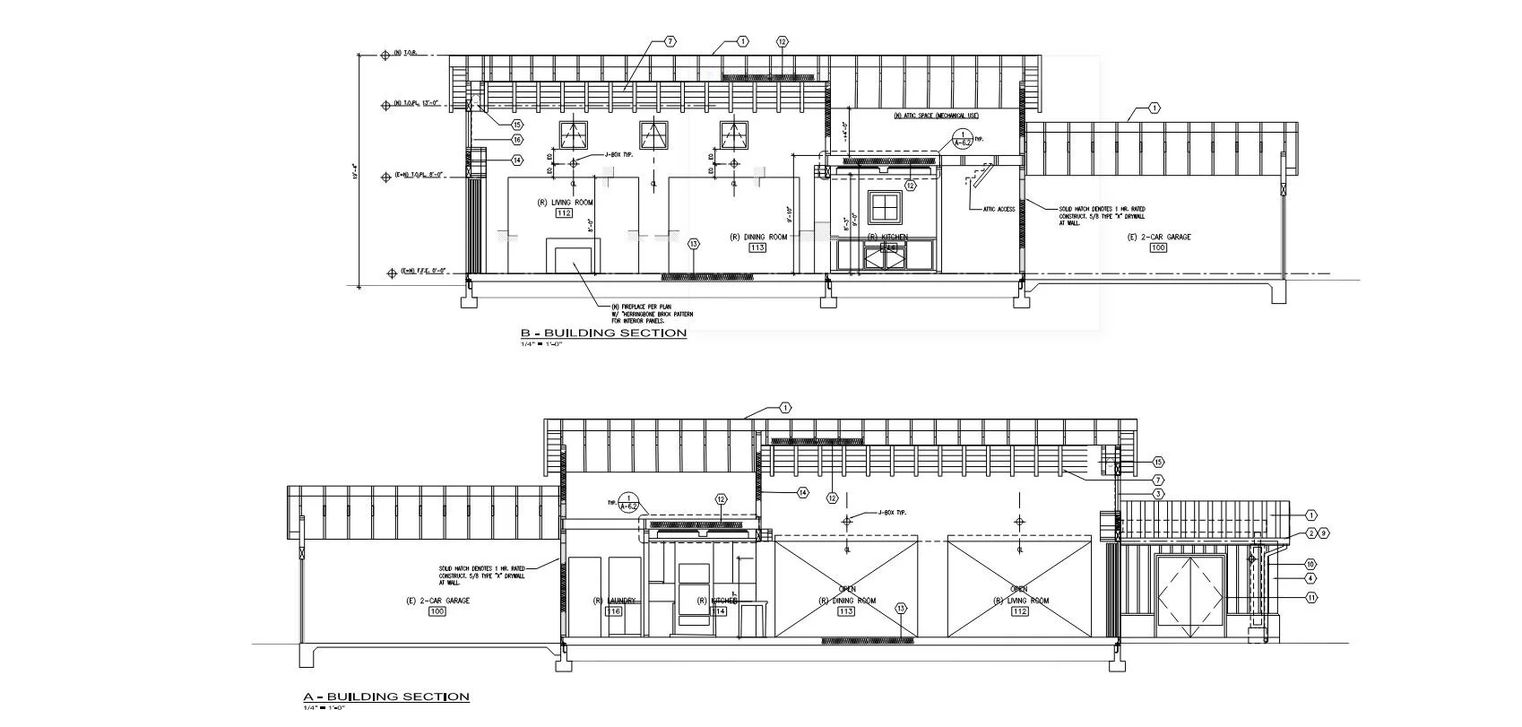
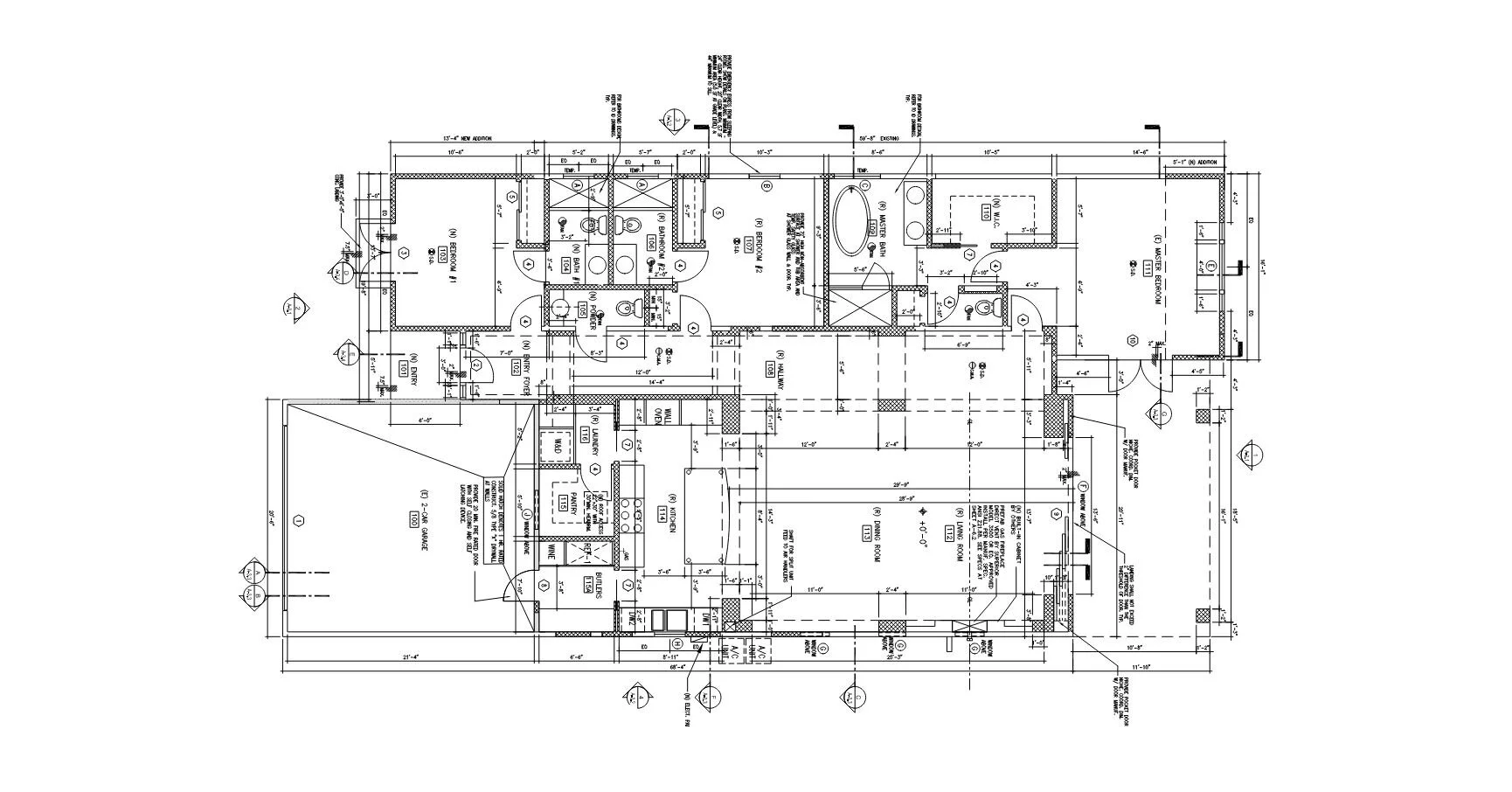
The Hillcrest House
This house is located on the bluffs of El Segundo and is reconfigured to maximize its ocean view. The existing layout is composed of two distinct elements; one side for sleeping and one side for living . These two sides are are then bisected by a circulation core that ties the two elements together. The living side is framed by a main house structure containing all of the functions within a single grand room, allowing views from all of the spaces to the Pacific Ocean view.















