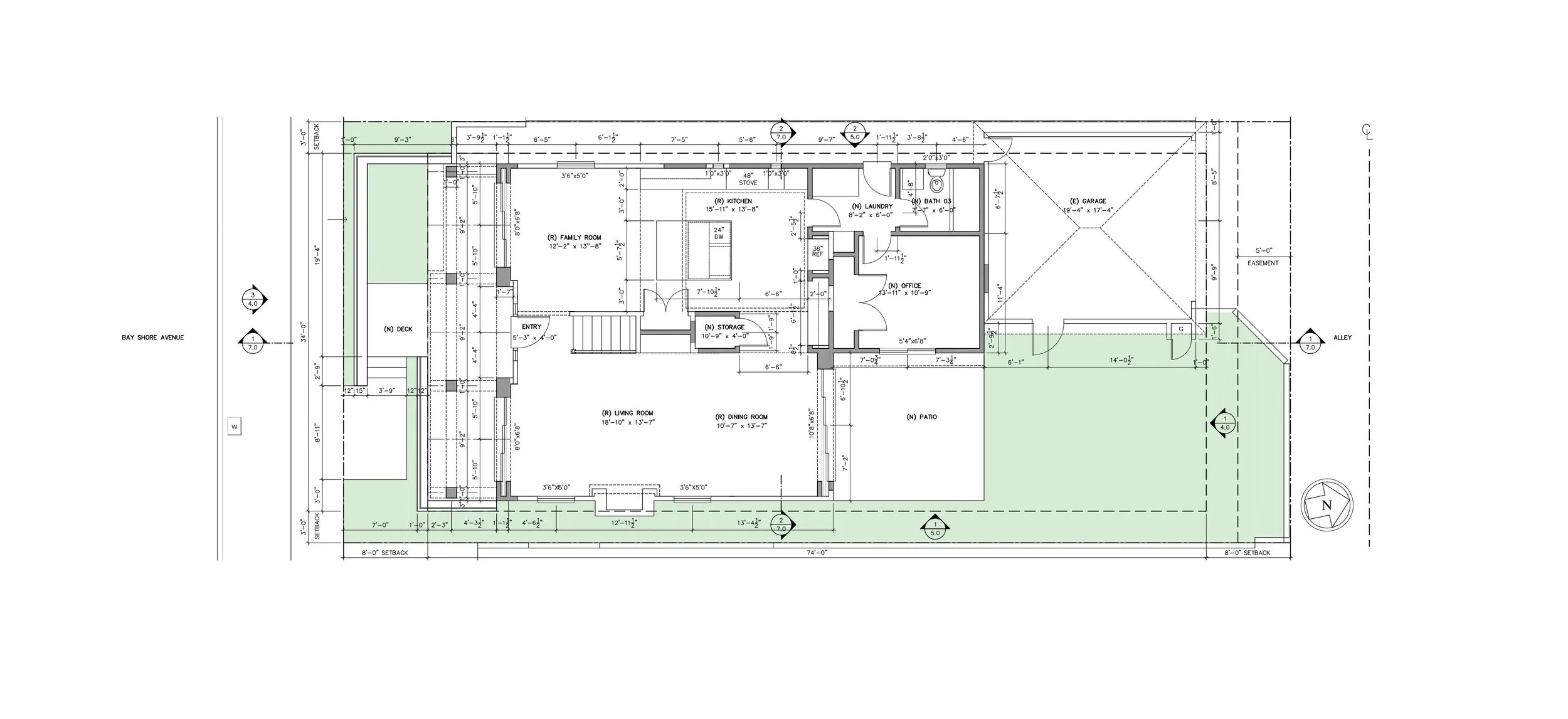
Bay Shore House
This project will renovate a 1940’s era 2 level ocean view house. The design today is very internalized. The design concept will be to embrace the outdoors, creating an environment that can be fully externalized. Views, private spaces, and a modern approach will reposition this home to be the jewel of the shore.

Coastal Modern


